ガレージのある家

仕事も趣味も手を抜かない、こだわりを叶える住まい
家の中にガレージを組み込んだ、車好きを満足させるインダストリアルなデザイン。
仕事も趣味も手を抜かない、こだわりを叶える住まい。

ビルトインガレージのある
インダストリアルデザインの家
ニューヨークのブルックリンは流行と多様性の街。おしゃれなレストランや倉庫を改造した味わい深い店が立ち並びます。
そんなブルックリンをイメージしたのが「ガレージのある家」。独特の存在感を放つ外観、古き良きアメリカを感じさせるインダストリアルな内観など 、日々の暮らしや趣味の時間が一層楽しくなるようなデザインが魅力です。
ヴィンテージの家具や小物を揃えて自分好みに仕上げてもOK。ティーブレイクやコーヒーブレイクもカフェさながらの雰囲気で楽しむことができます。
リビングとつながるビルトインガレージでは趣味を楽しんだり、車やバイクの整備も可能。愛車を眺めているだけでも喜びがあふれるような空間です。

大人の遊び心を詰め込んだ、
ブルックリン風ヴィンテージハウス
古いものと新しいものとが同居するニューヨークブルックリンをイメージした外観。内観はインダストリアルな雰囲気に仕上げ、アンティークな家具や小物との相性も抜群です。
また、家事のしやすい回遊動線を採用。デザインだけでなく、生活のしやすさにも重点を置いた間取りです。

動線にも配慮した
使いやすいビルトインガレージ
ガレージはポーチを経由して玄関に接続しているので、雨に濡れることもなく車の乗り降りが可能です。
また、ガレージからはキッチン横の廊下に直接出入りすることができるので、たくさん買い物をしても荷物を楽に運ぶことができます。
さらに、広々としたビルトインガレージは子どもの遊び場にピッタリ。雨の日でも安心して遊ばせることができます。

子育て世代に人気の
平屋にも対応!
今は子育て世代にも人気の平屋。その平屋タイプもラインナップ!
ガレージのある家のコンセプトはそのままに、とっても暮らしやすいと評判のフラットな暮らしも実現します。
こだわりポイント
POINT 01
外観は趣のある
インダストリアルな佇まい幅広い年代に人気のデザイン「インダストリアル」。独特の風合いはアイアンやタイルといった無骨で無機質な素材がベースになっています。フローリングには美しい模様を描く「パーケット」を取り入れることで、アンティークな家具とも自然に調和します。
POINT 02
使い方は家族次第
2階スタディコーナー2階の廊下部分に位置するスタディコーナーは書斎や仕事の場所として利用できるほか、子どもの勉強場所にもおすすめの多目的スペースです。程よい距離感を保ちながらも、リビングの吹き抜けを通じて家族の気配を感じられるのもメリットの一つです。
POINT 03
家事の時短に効果的な
回遊動線を採用無駄な動きを減らすことのできる回遊動線を取り入れることによって、家の中をスムーズに行き来できるようになります。たとえば、買い物帰りにガレージから直接キッチンに移動できたり、料理の合間に洗濯をしたりと、家事効率を考えたレイアウトを採用しています。
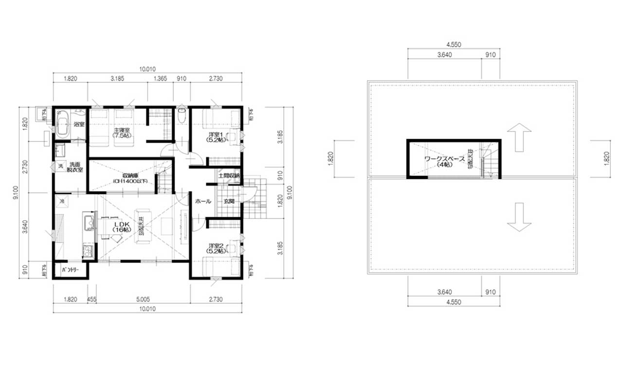
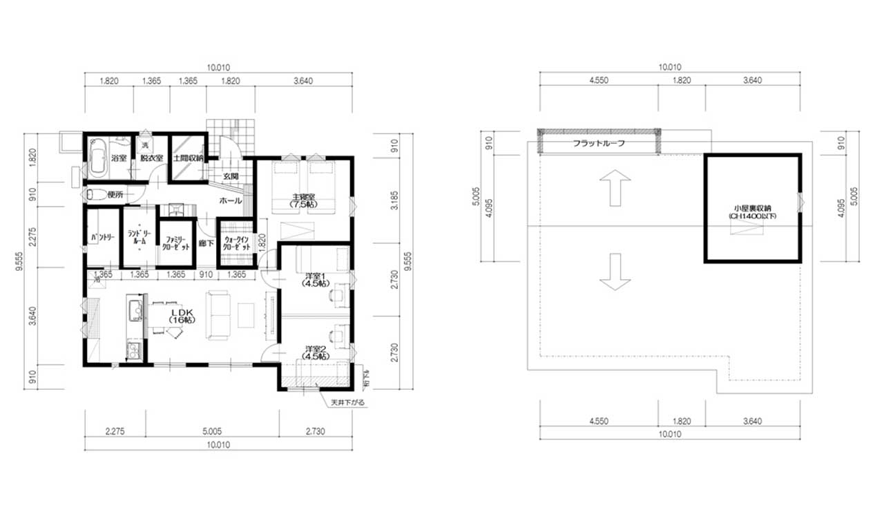
フロアプラン
メインプラン
施工床面積 129.16㎡(39.07坪) 延べ床面積 121.51㎡(36.76坪) 1F床面積 63.76㎡ 2F床面積 57.75㎡ ※申請上の面積とは異なる場合があります
PLANB
施工床面積 128.34㎡(38.82坪) 延べ床面積 122.76㎡(37.13坪) 1F床面積 63.76㎡ 2F床面積 59.00㎡ ※申請上の面積とは異なる場合があります
PLANC
施工床面積 129.17㎡(39.07坪) 延べ床面積 121.52㎡(36.76坪) 1F床面積 63.76㎡ 2F床面積 57.76㎡ ※申請上の面積とは異なる場合があります
PLAND
施工床面積 128.34㎡(38.82坪) 延べ床面積 121.72㎡(36.82坪) 1F床面積 63.76㎡ 2F床面積 57.96㎡ ※申請上の面積とは異なる場合があります
平屋PLAN
施工床面積 94.32㎡(28.53坪) 延べ床面積 92.67㎡(28.03坪) 1F床面積 92.67㎡(28.03坪) ※申請上の面積とは異なる場合があります










































長期優良住宅の認定を受けるためには、耐震性・耐久性・省エネ性・維持管理のしやすさなど、長期的な品質保持に必要な基準を満たしていることが条件です。
断熱性能は、外皮面積あたりの熱損失量を示す外皮平均熱貫流率(UA値)によって評価されます。
